Varan 1: AKP'li İl Yönetim Kurulu Üyesine sağlanan trilyonluk rant!
Çankırı Belediyesi'nin şehir merkezinde gerçekleştirdiği yasa dışı 'plan tadilatları' ile AKP'li İl Yönetim Kurulu Üyesi Mehmet Akçakaya trilyonuk rantlar elde etti
Haber Merkezi'mizin kamuoyu ile paylaştığı "Sözcü18 Çankırı'da rant dosyasını açıyor" başlıklı anonsumuzun ardından ilk haberimizi 'VARAN 1' olarak sizlerle paylaşıyoruz.
Dosyamızın baş aktörü malumunuz Çankırı Belediyesi!
Önce elimizdeki 'T.C. Çankırı Belediye Başkanlığı Meclis Kararı'na bir bakalım!
Karar No: 51, Karar Tarihi: 04.02.2016
Konusu: İmaar Komisyon Raporu
Karara katılanlar:
Meclis Başkan V. Abdulkadir Çelik
Üyelerden: Tuncay Koç, Zeynel Acar, Hüseyin Boz, Metin Küçükertan, Mustafa Potukoğlu, Durmuş Karataş, İbrahim Memeci, Tuncay Yaşar, Ömer Korkmaz, Satılmış Barak, Fatih Demir, Mehmet Evci, Canay Ulucan, Mustafa Altun, Hazım Memiş, Zühtü Kıyısın, İsmail Hakkı Esen, Özlem Demirci, Cengiz Nefes, Melih Kapusuz, Seçkin Karaşahin, Ahmet Gezer
Kararın özü: İmar Komisyon Raporu hakkında karar:

KARAR YAZISI
İmar ve Şehircilik Müdürlüğü tarafından görüşülmek üzere 11.01.2016 tarih ve 40 sayılı Belediye Meclis kararı ile havale edilen imar planı değişikliği dosyaları değerlendirilmesi için 14.01.2016 - 15.01.2016 tarihlerinde tüm komisyon üyelerinin katılımı ve İmar ve Şehircilik Müdürlüğü'nden İmar Müdürü Seda Yazıhan ve Şehir Plancısı Yavuz Astarlıoğlu'nun katılımları ile incelemeler yapılmıştır.
İmar ve Şehircilik Müdürlüğü teknik personelleri tarafından hazırlanan imar planı değişikliği tekliflerine ilişkin teknik inceleme raporu İmar Komisyonu üyelerine iletildi.
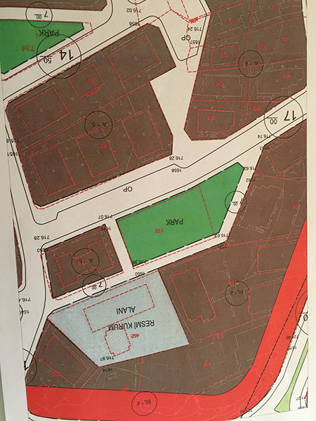
11.01.2016 tarih ve 40 sayılı karar sayılı Belediye Meclis Kararı ile plan değişikliği talebinde bulunan Mehmet AKÇAKAYA Çankırı ili, Merkez ilçesi, Buğdaypazarı Mahallesi 532 ada 120 nolu parsel kuzeyinde ve batısında 7 metrelik yol ve konut altı ticaret parselleri, güneyinde 17 metrelik taşıt yolu ve akabinde konut parselleri, doğusunda 7 metrelik yol ve akabinde konut parseli bulunmaktadır. Mevcut durumda Açık Spor Tesisi Alanı kullanım kararlıdır.
İmar planı değişikliğine konu 532 ada 120 parselin mülkiyeti şahsa ait olmasına rağmen parselin üzerinde açık spor tesisi alanı bulunmasından dolayı parsel maliki tarafından kullanılamamakta olup bu alanın konut altı ticaret kullanımına çevrilmesi için plan değişikliği talep edilmektedir. Hazırlanan İmar plan değişikliği sonrası E: 2.80 Yençok: 8 kat yapılaşma koşulları ile Konut altı Ticaret kullanım kararı getirilmiştir. 532 ada 120 parsel dışında kalan Açık Spor Tesis Alanı, Park alanına çevrilmiştir. GİRİŞ KATLAR ASMA KATLI YAPILABİLİR. GİRİŞ KATLARIN ASMA KATLI YAPILMASI DURUMUNDA VE İNŞAAT ALANI ARTIŞININ SADECE GİRİŞ VE ASMA KATLARDAKİ TİCARİ ALANLARA YÖNELİK OLMASI ŞARTIYLA E=3.7 OLACAKTIR. Plan notu hükmü eklenmiştir.
Açık Spor Tesisi Alanı'ndan Konut altı Ticaret kullanımına çevrilen 1764 m2 alan kadar park alanı G31- D- 188-1B paftasında yer alan Esentepe Mevkii Kentsel servis alanının kuzeyinde bulunan 463 ada 6 parselde bulunan Park alanından karşılanacaktır...
Çankırı ili, Mekez İlçesi, Buğdaypazarı Mahallesi 532 ada 120 nolu parsele ait Uygulama İmar Planı Değşikliği dosyası üyelerden; HAZIM MEMİŞ, ZÜHTÜ KIYISIN, İSMAİL HAKKI ESEN, ÖZLEM DEMİRCİ, CENGİZ NEFES, MELİH KAPUSUZ, SEÇKİN KARAŞAHİN, AHMET GEZER'in red oylarına karşılık diğer üyelerin kabul oyları ve oy çokluğu ile kabulüne, gereğ için evrakın İmar ve Şehircilik Müdürlüğüne havalesine 04.02.2016 tarihinde karar verildi.
Abdulkadir Çelik - Meclis Başkan V. - İMZA
İbrahim Memeci - Katip Üye - İMZA
Canay Ulucan - Katip Üye - İMZA"

ÖNCELİKLE; YEŞİL ALAN'I ALARAK SONRASINDA
GERÇEKLEŞTİRİLEN PLAN TADİLATI İLE
TRİLYONLUK RANT ELDE EDEN
MEHMET AKÇAKAYA'YI TANIYALIM
Sözkonusu parselin sahibi olarak Çankırı Belediyesi'nden 'plan tadilatı' talebinde bulunan Mehmet Akçakaya, halen AK Parti Çankırı İl Yönetim Kurulu üyesi olarak görev yapmakla birlikte şehir merkezinde müteahhitlik mesleğini sürdürmekte.
Tapu kayıtlarında 'kamuya ait park alanı' olması hasebiyle Çankırı Belediyesi tarafından kamuya terki sağlanması gereken sözkonusu parsel; AK Parti Çankırı İl Yönetim Kurulu üyesi olarak görev yapan Mehmet Akçakaya'nın ortağı olduğu 'Akçakaya Gıda İnş. Ltd. Şti.' firması tarafından Şubat 2015 tarihinde 'park alanı' olduğu bilinerek alındı. Buna mukabil adı geçen parsel bugün karşımızaa Çankırı Belediyesi'nin akıl almaz ve eşi benzeri görülmemiş icraatiyle konut+ticari alan tadilatı yapılmış ve yeni sahibine trilyonluk rant sağlayacak şekle büründürülmüştür.
YAPILAN PLAN DEĞİŞİKLİĞİ
NEDEN YASALARA AYKIRI?
Söz konusu Belediye Meclis Kararı ile Çankırı Merkez, Buğdaypazarı Mahallesi 532 ada 327 no'lu parsel başta İller Bankası'nca ve Çankırı Belediyesince 2014 yılında yapılan 'revizyon imar planı'nda 'park alanı' olarak gösterildi. Söz konusu parsel çevresindeki konut parsellerinin imarı sonucu terki ile 'park' olarak yapılmış ve korunmuş bir parsel konumundaydı.
Bu parselin çevresindeki kat adetleri ise 4-6 olarak belirlenmişken (yoğunluk E= 1.60 ve E= 2.40 iken) bölgenin tamamı 2014 yılı revizyonunda kent bütününde yeterli yeşil ve donatı alanı ayrılmadan 7 kata çıkarılmıştı.
Gel gör ki; bu parsel, Çankırı Belediye Meclisi'nin aldığı karar ile gerçekleştirilen imar panı tadilatı ile E: 2.80 inşaat alanlı ve yüksekliği 8 kat gibi TİCARİ+KONUT kullanımına dönüştürülerek çevresindeki konut parsellerindeki 5-6 katlı ve E=2.00 olan kullanımlara ters, bölge kat ve yoğunluk rejimine aykırı bir duruma dönüştürülmekle kalınmamış, plan notu ilavesi ile de yapılanma koşulu E= 3.70'e çıkartılarak ilave rant verilmiştir.
Bununla birlikte 1. derece deprem bölgesi olan Çankırı'da, bu tadilatla getirilen 8 kat için yönetmelik gereği yapılması gereken 'jeolojik etüdler' de yenilenmemiştir.
ÇANKIRI BELEDİYESİ'NDEN GÖRÜLMEMİŞ UYGULAMA!
Öte yandan yapılan işlemin 'kişiye özel' ve tamamen 'rant' amaçlı olduğu apaçık ortadayken, konut ve ticaret kullanımının ihtiyacı olan ve planlı alanlar tip yönetmeliği gereği ayrılması zorunlu ilave yeşil alan ve donatı alanları içinde, sözü edilen alandan kaldırılan 1764 m² yeşil alana karşılık, Çankırı Belediyesi, Esentepe mevkii 463 ada 6 parselin bulunduğu alanda karşılandığını ifade etse de, sözkonusu bu alan gerek İller Bankası'nca ve gerekse Çankırı Belediyesi'nce 2014 yılında yapılan revizyonda görüldüğü üzere zaten 'park alanı'dır. Çankırı Belediyesi kendi yaptığı planda 'park alanı' olan bir yeri tekrar 'park' ve 'spor alanı' olarak göstermesi açıkça yasalara aykırı ve de suçtur. Bununla birlikte sözü edilen alan oldukça eğimli ve böylesi bir alanın da 'spor alanı' olması mümkün değildir.

AK Parti Çankırı İl Yönetim Kurulu Üyesi Mehmet Akçakaya'nın talebi üzerine Çankırı Belediyesi'nce yapılan plan değişikliğine muhatap sözkonusu parsel 'PARK' olarak gösterilen bölümdür.

'Rant dosyası'na konu olan parselin bugünkü görüntüsü...






